๐ Open House: Sat, May 2 ยท 2:00 PM โ 4:00 PM
$2,498,800
6575 LIME STREET
Vancouver, British Columbia V6P5V7
For sale
5 Beds5 Baths1994 sqft5000 sqft
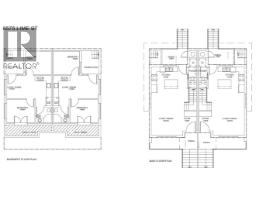
Brand new home 2026 spring. NO strata fee! A curated collection of bespoke Duplex homes on Vancouver's tree-lined Kerrisdale neighborhood. 2 Bed 1 Bath Legal rental suite in basement. Impeccable space designed enables spacious interiors for living. Smart Home systems equipped community, together with spa-like bathrooms, air conditioned and floor heating and more. Openhouse 2-4 p.m. May 2nd. (id:58554)
Open House
Sat, May 2
2:00 โ 4:00 PM
Overview
Property TypeSingle Family
Building TypeDuplex
OwnershipStrata
TransactionFor sale
MLSยฎR3109771
Building
Bedrooms5
Bathrooms5
Interior Size1994 sqft
Year Built2026
Land & Parking
Lot Size5000 sqft
Frontage50 ft
Parking Spaces2
Brokerage
RE/MAX Crest Realty
#300 - 1195 West Broadway
Vancouver, British Columbia V6H3X5
๐ (604) 602-1111
